Latitud 34º

COSTA URUGUAY
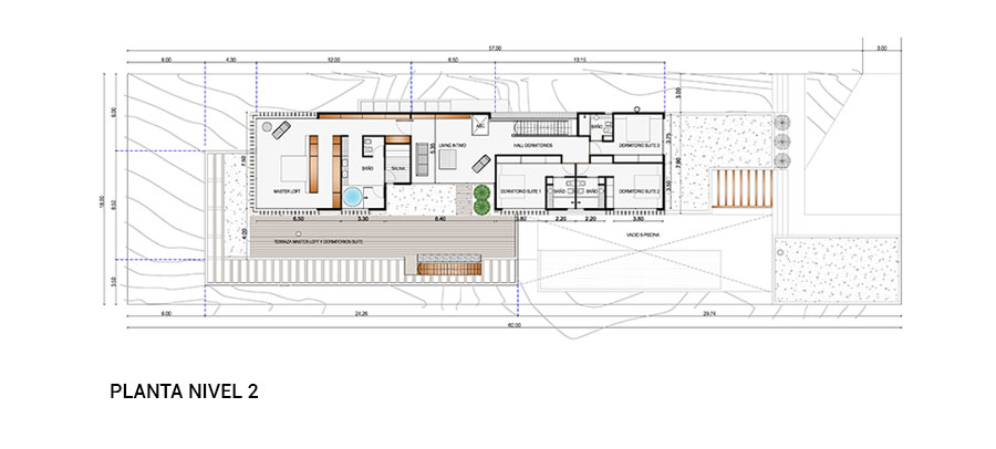
En un terreno de suave pendiente hacia el mar, la propuesta se destaca por líneas geométricas claras que se insertan en el paisaje de rocas arena y océano, penetrando a través de la transparencia en el interior.
  • ObraLatitud 34º, Costa Uruguay
  • Superficie2 mts
  • Año2025