Escuela Toranit

CABA. BUENOS AIRES
El proyecto asume la responsabilidad de generar un edificio de fuerte lenguaje contemporáneo, de neto carácter institucional y comprender la morfología del sitio propuesto.

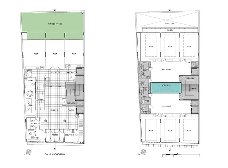
La decisión de minimizar la altura, así como horadar la masa construida en base a un patio interior generando un paisaje interior, con gran calidad de la iluminación natural pone de manifiesto el espíritu sustentable del proyecto. Se plantean dos alas articuladas a través de este patio interior . La piel que da a la calle orientación noroeste es, materializada a través de parasoles móviles de aluminio y la piel que da al suroeste se traduce en una serie de balcones de expansión forrados en una malla integral metálica galvanizada.
  • ObraJardin de Infantes- Anchorena
  • Superficie4000 m2
  • Año2012/2013
El hall del edificio comunica directamente con un amplio espacio de reunión con transparencia hacia el fondo jardín del predio así como se conecta con la luz natural del patio central. Un sistema de escaleras de amplias dimensiones conectan el salón de actos en el subsuelo y las plantas superiores de aulas interconectadas en medios niveles a través de la escalera vidriada recostada sobre la medianera.

Cada nivel tiene amplias superficies de esparcimiento masivo tratados como espacios de circulaciones y movimiento de grandes flujos de chicos, de tal manera de considerar tan importantes las áreas de recreo como las aulas de estudio así como también las áreas de circulación vertical. Todos estos espacios se comunican visualmente con el patio central.
La propuesta intenta responder al programa propuesto a través de un edificio eficiente, que resuelvan la problemática urbana de una manera creativa,, aportando una nota de color, generando espacios interiores para los niños que mejoren la creatividad y libertad de pensamiento así como la jerarquía de los espacios de estudio.