Sinagoga Mishkan

CABA. BUENOS AIRES
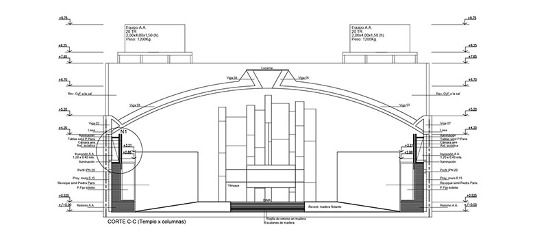
El espacio del templo esta materializado por una cáscara de hormigón visto, que apoyándose solo en las medianeras, queda interrumpido en su punto mas alto por una raja de luz cenital que lo atraviesa longitudinalmente generando una sensación de liviandad, como si las cáscaras flotaran.
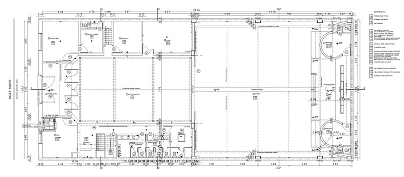
  • ObraSinagoga Mishkan. Sucre 1420
  • Superficie 1200 m2
  • Año1999/2000
El carácter del templo se destaca por el uso de un solo material, la piedra , que en las sucesivas horas del día, va tomando diversas texturas en base al juego de los volúmenes bajo la luz.