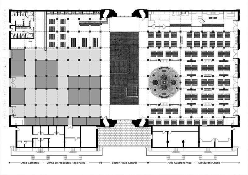
El emprendimiento propone generar un circuito turístico de índole cultural y comercial que permita conocer y valorar las costumbres de la Pampa y el campo.
Nuestra premisa proyectual fue respetar la arquitectura del Pabellón valorando su nobleza original.
ObraPabellon de Equinos - La Rural
Superficie 2000 m2
Año2003 / 2004
El partido enfatiza y jerarquiza el eje transversal del Pabellón dominado por la bóveda del cañon central ,generando dos zonas, separadas por una plaza seca interior que delimitamos con un piso de durmientes de quebracho rústico apto para el transito de caballos.